Terug naar overzicht

Herderstraat 7, Echt

Prachtige tussenwoning in Echt – Schilberg
Deze charmante tussenwoning, gelegen in het sfeervolle Schilberg te Echt, biedt een perfecte combinatie van comfort, functionaliteit en een ideale ligging. Met een fraaie aanbouw en een doordachte indeling is dit huis een droomplek voor wie op zoek is naar eigentijds en comfortabel wonen.
________________________________________
Ligging en voorzieningen
De woning bevindt zich op een steenworp afstand van het bruisende centrum van Echt, in de rustige en kindvriendelijke wijk Schilberg. Alle voorzieningen bevinden zich in de directe omgeving: basisscholen, voortgezet onderwijs, huisartsenpraktijken, sportverenigingen, en meer.
Het treinstation, supermarkten, horeca en speciaalzaken zijn op loopafstand bereikbaar. Natuurliefhebbers kunnen hun hart ophalen in de nabijgelegen natuurgebieden “De Doort” en “’t Kranenbroek”.
Dankzij de gunstige ligging zijn de snelwegen A2 en A73 richting Maastricht, Eindhoven, Den Bosch en Venlo uitstekend bereikbaar.
Alleen een bezichtiging geeft een juiste indruk van deze woning – wij laten het u graag zien!
________________________________________
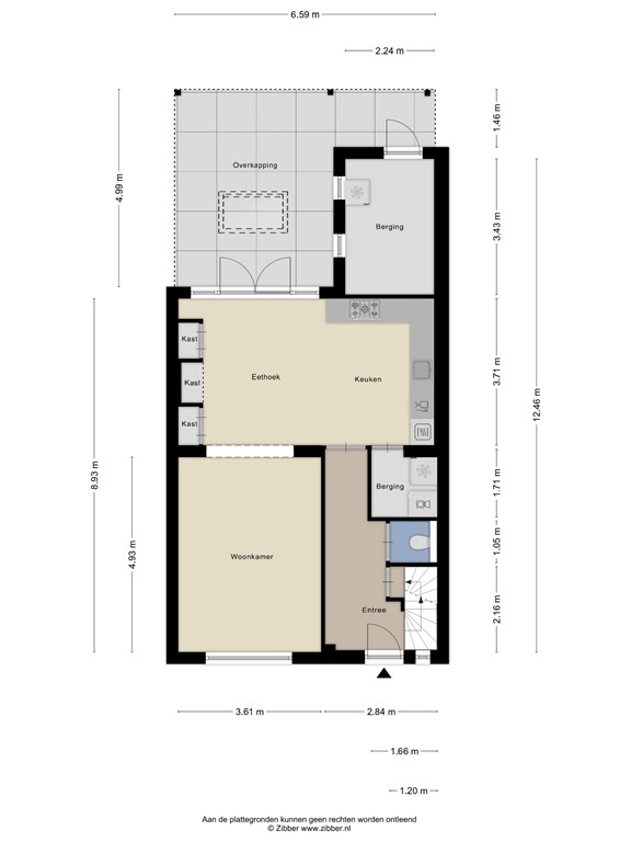
Begane grond
Bij binnenkomst ervaart u direct de lichte, uitnodigende sfeer. De hal biedt toegang tot het toilet en leidt naar de woonkamer, die is verdeeld in een zit- en eetgedeelte. De plavuizenvloer met vloerverwarming zorgt voor een aangename warmte en een moderne uitstraling.
De halfopen leefkeuken is uitgevoerd in een praktische hoekopstelling met volop opbergruimte en moderne apparatuur, waaronder een combimagnetron, kookplaat, oven, koelkast en afzuigkap. Vanuit de keuken heeft u een prachtig zicht op de achtertuin, die via openslaande tuindeuren bereikbaar is.
Aansluitend bevindt zich de bijkeuken met aansluitingen voor de wasmachine en droger.
________________________________________
Eerste verdieping
Op de eerste verdieping bevinden zich drie slaapkamers, allen voorzien van een laminaatvloer. Twee slaapkamers beschikken over handige muurkastruimte. De nette badkamer is compleet uitgerust met een douche, toilet en wastafelmeubel.
________________________________________
Tweede verdieping
De tweede verdieping is bereikbaar via een vlizotrap en wordt momenteel gebruikt als bergruimte. Hier bevindt zich tevens de cv-installatie.
________________________________________
Tuin
Via de zij-ingang bereikt u de volledig omheinde achtertuin met terras, overkapping, gazon en een gezellig zitgedeelte. De tuinberging biedt extra opbergruimte voor fietsen en tuingereedschap.
________________________________________
Bijzonderheden
• Bouwjaar: 1956
• Perceeloppervlakte: ca. 214 m²
• Woonoppervlakte: ca. 91 m²
• Overige inpandige ruimte: ca. 23 m²
• Gebouw gebonden buitenruimte: ca. 24 m²
• Inhoud: ca. 400 m³
• Verwarming: CV-ketel (2015, eigendom)
• Kozijnen: kunststof en hout, voorzien van dubbel glas
• Isolatie: dakisolatie, vloerisolatie en spouwisolatie (aanbouw)
• Energielabel: C
________________________________________
Kortom
Een instapklare, goed onderhouden woning op een uitstekende locatie in Echt. Perfect voor starters, jonge gezinnen of iedereen die comfortabel wil wonen met alle voorzieningen binnen handbereik.
Plan snel een bezichtiging en ervaar zelf de unieke charme van deze woning!

285.000 k.k Vraagprijs