VERKOCHT
Terug naar overzicht

Op De Meuleberg 14, Roermond

Instapklaar 3-kamer appartement met moderne keuken & badkamer – Roer-Zuid, Roermond
In de geliefde en rustige woonwijk Roer-Zuid, op korte afstand van het centrum van Roermond en diverse uitvalswegen, ligt dit instapklare 3-kamer appartement op de 1e verdieping. De woning beschikt over een moderne keuken en badkamer, een lichte en ruime woonkamer, twee slaapkamers, balkons aan zowel de voor- als achterzijde én een ruime privéberging in het souterrain.
Dankzij de kunststof kozijnen met HR++ beglazing, glad gestucte wanden en een hoogwaardige afwerking is het appartement helemaal aangepast aan de woonwensen van nu.
________________________________________
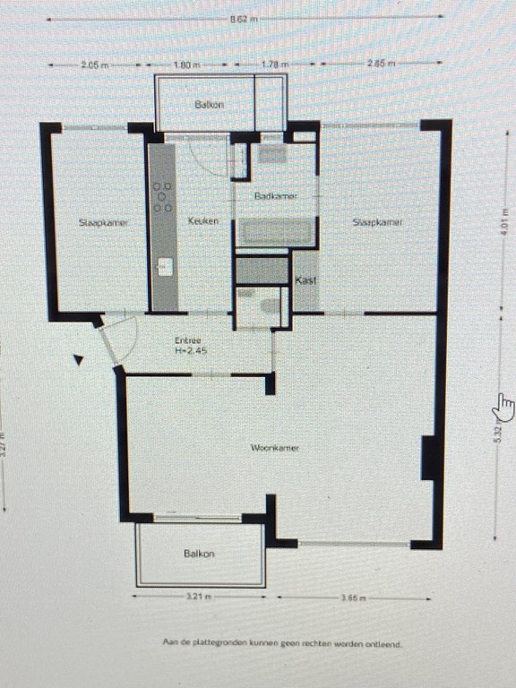
Indeling
Souterrain:
Ruime privéberging (ca. 12 m²) met witgoedaansluitingen.
Begane grond:
Gemeenschappelijke entree met brievenbussen en trappenhuis naar de drie woonlagen. Het appartement Op de Meulenberg 14 bevindt zich op de 1e verdieping.
1e Verdieping:
• Entree/hal met laminaatvloer, garderobe en modern hangtoilet.
• Ruime, lichte woonkamer met laminaatvloer en toegang tot balkon op het zuiden.
• Dichte, moderne keuken voorzien van:
o Inductiekookplaat
o Afzuigkap
o Koelkast
o Combi-magnetron/oven
o Vaatwasser
o Toegang tot tweede balkon aan de achterzijde
• Slaapkamer 1 met laminaatvloer en ensuite badkamer met inloopdouche, wastafel en designradiator.
• Slaapkamer 2, eveneens voorzien van laminaatvloer.
________________________________________
Bijzonderheden:
• Bouwjaar: 1956, volledig gemoderniseerd
• Kunststof kozijnen met dubbele beglazing
• Stucwanden in het gehele appartement
• Verwarming via CV-combiketel (huur, ca. 2017, € 37,92 per maand)
• Servicekosten ca. € 125,- per maand (inclusief o.a. opstalverzekering, onderhoud, schoonmaak en verlichting gemeenschappelijke ruimtes)
• Energielabel F
• Instapklaar en netjes afgewerkt
________________________________________
Een ideaal appartement voor comfortabel wonen op een centrale locatie in Roermond. Interesse? Neem snel contact op voor een bezichtiging!

VERKOCHT